

杭州爆米花科技股份有限公司
浙江省杭州市余杭区仓前街道伍迪中心2幢9层903
0571-89935007
92平清新北欧风两居室,带你重回质朴小美好
92平清新北欧风空间,明亮素雅的两居室,带你重回质朴的小美好
北欧风的清新美好是现在不少人都追求的一种的家居风格,本案的房主就很喜欢北欧风的设计,希望能够在简约风的空间当中找到生活当中的温柔和美好。设计师运用大量的浅色系以及木作元素,为房主组合构建一个北欧自然空间。
案例:92平北欧风空间
居住成员:两人
房屋面积:92平
房屋类型:两室
空间格局:客厅、餐厅、厨房、卧室×2、卫生间
主要建材:木作、瓷砖、清玻、灯具、软件
预算:20万以上
设计师:冯浩
厨房没有窗,而且距离公场域的大面采光窗也比较远,因此整体是比较暗的。设计师在厨房空间使用了大量的纯白材料,从而为空间提亮增光。
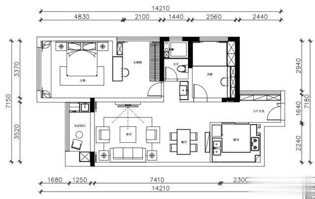
【户型图】

房间的整体格局其实还算是较为方正规整,也因此设计师并没有做太多的改动。因为房主希望能够将盥洗台面移到卫浴外的公场域设计,设计师做了一个三室分离的设计,实现了盥洗独立机能。
【玄关】

设计亮点:入户造景
从格局上看玄关本身是一个较长的走廊设计,因为本身宽度也足够,因此设计师在玄关位置做了较大的鞋柜空间,连着鞋柜的是一个长换鞋凳,这里也可以作为日常的休闲区所用。玄关的地面用小花砖进行铺设,至公场域换成木地板,实现了场域的无隔断转换。
【客厅】


设计亮点:清新自然
客厅的整体配色是很有清新的感觉的,纯白的墙面上只有几幅错落的画作装饰,下面是一个组合式的L型多人沙发,木色的框架底面加上深蓝的垫子和靠背,蓝白的搭配显得格外清雅。沙发侧面是一个藤编的单人椅、一个木作边几和一个圆形的组合茶几,再无其他装饰,有一种自然简约的空间感受。

设计亮点:文化石
电视墙面选用文化石进行铺设,纯白的文化石有一种凹凸不平整的装饰效果,另辅以灯光点缀。在电视的下面是一个掏空开放的小置物柜,可以作为电视柜所用,木作和石材的差异化组合在整体墙面上反而有了一种协调的调性搭配。
【厨房】


设计亮点:U型橱柜
厨房选用U型的橱柜,让操作台面更加的宽敞一些。地坪墙面加上橱柜都选用大量的纯白色系,提升亮度,这也是考虑到厨房没有自然采光源。在厨房的墙面上还有多个层板,方便放置或者是挂一些厨房用品,不显得杂乱。
【餐厅】




设计亮点:简约质朴
餐厅是大量木作元素的组合,两边的餐椅造型不同,这种差异化的表现手法也是北欧风格设计当中常见的一种。长凳之后是一个木作的半高餐柜,其上有水壶水杯等物,可以作为一个饮水吧台。
【卫浴】


设计亮点:三室分离
虽然将盥洗台外置,但是在从外部开始地坪就已经改为白色的人字形拼贴瓷砖,作为场域的一个划分。卫浴内部地坪和墙面选用造型不同的瓷砖铺贴,也做了干湿分离的设计,避免潮湿也方便打扫。
【卧室】



设计亮点:回归质朴
主卧空间基本没有多余的累赘装饰,就是将简单生活的概念体现到极致。木作的床组、吊灯、艺术画,看似是一个对称的设计,但是细微之处还有不同,呈现出别样的美感。


设计亮点:衣帽间
临着睡眠区的就是衣帽间了,中间用一个梳妆台作为分隔,相对独立的功能区划分也满足了女房主的独立衣帽间的想法。
【书房】


设计亮点:功能区
书房做了榻榻米的设计,满足了多功能分区的需求。
总结点评:本案的这个92平的北欧风空间最为注重的就是生活的舒适度和轻松感,通过浅灰色系、深蓝、纯白和木色的相互调配,让空间的表现效果更加清新。
趣闻天下


关注

158238