

杭州爆米花科技股份有限公司
浙江省杭州市余杭区仓前街道伍迪中心2幢9层903
0571-89935007
142平混搭风三居室,异型大阳台打造舒适休闲美家
142平混搭风三居室,异型阳台宽大阔朗,打造迷人的舒适休闲美家
本案这个混搭空间的一个特点就是优雅而浪漫,融合了法式的浪漫抒情、欧式的典雅文艺还有美式的简约阔朗,是现在更多人的首选。房主就希望能够打造一个兼具优雅表现和温馨活泼的家居氛围,为此设计师在房屋当中融入大量的色彩表现,通过反差明显的色调阐述理想的艺术表达。
案例:142平混搭风大空间
居住成员:三人
房屋面积:142平
房屋类型:三室
空间格局:客厅、餐厅、厨房、卫浴×2、卧室×3
主要建材:护墙板、大理石、皮质、金属等
预算:20万以上
设计师:迷一
宽敞的餐厨区并没有做格局改动,中间没有阻挡的两个场域动线流畅连贯,从视觉效果上来说也显得格外敞朗。公场域当中融入了很多的金属元素,通过金属元素的特性,从而实现想要的轻奢表现。
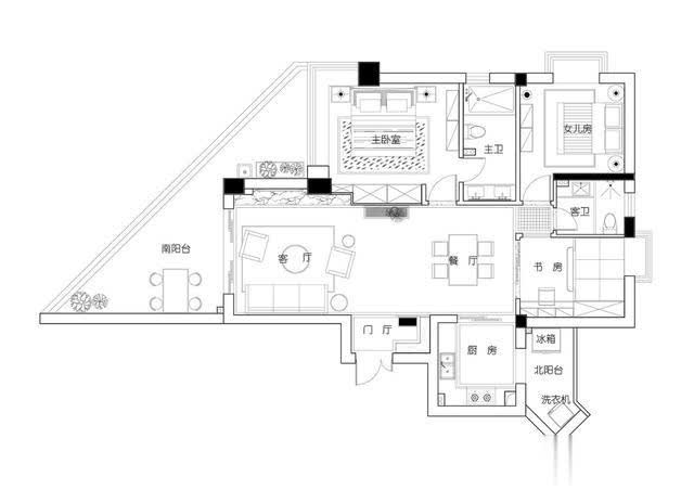
【户型图】


本案一个最大的问题就是内室没有墙体隔断,这样就容易造成空间机能划分的不明确。设计师在主卧室还有书房位置都另做了墙体,同时还扩展了主卫空间,做出较为明确的空间场域的划分,方便日常的生活。
【玄关】

设计亮点:紫色惊艳
从入户门进来对面就是一个加沙玻璃隔断,这是作为场域划分所用的,也更好的区域入门处和内室空间。在大门的右手边是一个组合柜,鞋柜也包含其中。入门位置最为引人注意的就是紫色的门套,和整体的设计有所不同,更加乍眼,也成为了大空间的一个亮眼的点缀。
【客厅】

设计亮点:典雅空间
客厅整体是相当有典雅气质的,无论是护墙板的装饰或者是色彩的点缀都鞥能够看出来这一点。而同时白色帷幔的加入也让客厅看起来多了一些柔情浪漫。



设计亮点:电视墙
电视墙面是护墙板和大理石的组合,蓝绿色的护墙板作为框架,和纯白搭配显得更加有气质和格调。而墙面还有一层大理石面的层板,可以放置一些小物品。实际上纯白大理石元素在电视墙还有沙发墙上都有体现,也让两个墙面有了更加紧密的联系。

设计亮点:端景柜
在客厅位置还有一个端景柜,多抽屉的半高柜能够放置不少的小零碎物品,台面上也有很多造型摆件。但是最受到关注的还是墙面的羽毛图案挂画,像是孔雀尾羽的造型。
【厨房】

设计亮点:金属质感
厨房整体呈现出黑白交错的效果,橱柜的烤漆面反光特质,有一种金属质感。而黑色的反光瓷砖面,再进一步地渲染整体的精致和奢华表现,将原本日常生活当中极为琐碎的厨房空间,打造得格外有质感。
【餐厅】


设计亮点:水晶吊灯
餐桌椅是比较传统经典的木作、大理石加上皮质面的组合,在轻奢、现代风格当中使用得比较多。上面的大型水晶吊灯有金色元素作为修饰,让餐厅更多一些华丽的装饰效果。
【卫浴】



设计亮点:层次分明
卫浴空间用不同的石材效果做了一个层次分离,让整体空间的层次表达更加分明,每一个相对独立机能都能够得到明确的划分。
【卧室】




设计亮点:浪漫氛围
主卧的色彩表现还是比较丰富的,墙面的葡萄紫渲染整体空间的表现效果,纯黑的皮质大床看起来很有一种复古奢华的质感。床头的位置,用多层的线条进行修饰,让空间更有纵深感,从视觉效果上也得到了拉长。


设计亮点:儿童房
儿童房的主题就是清新,抹茶色的墙面阐述了绿林的主题,精致的大床加上垂下的帐幔,打造属于孩子的林中精灵屋。
【阳台】

设计亮点:休闲一隅
阳台做了休闲机能的配置,可以在这里喝喝下午茶,吃个小甜点,也很不错。
总结点评:本案值得参考的地方有不少,像是卫浴空间的层次处理,还有整体的色彩搭配以及反光烤漆面的运用,这都是可以在实际装修当中借鉴实现的。
趣闻天下


关注

71417