

杭州爆米花科技股份有限公司
浙江省杭州市余杭区仓前街道伍迪中心2幢9层903
0571-89935007
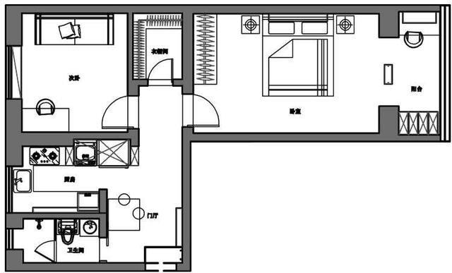
套内46㎡堪称迷你豪宅!每1㎡都是小户型装修指南
看完这套老房改造案例,真让人眼前一亮!
46平米的老房子,愣是整出了豪宅的架势,该有的功能一样没落下。
就说这玄关改造吧,原先那个压抑的粉墙吊柜换成天空蓝加纯白,清爽得跟夏天喝冰水似的。
进门空间窄得转不开身?
人家直接用超薄翻斗鞋柜和镜柜搞定,鞋是放齐了,电表箱藏严实了,还让过道显高了一截。
这脑洞开得,不就是把犄角旮旯榨出汁儿来用嘛!
厨房这块更有意思,巴掌大的地方愣是塞进U型操作台。
你说它挤?
可刀叉碗碟摆得井井有条,烤箱两侧还藏着高拉篮,油盐酱醋一拉就到位。
最绝的是墙上抠个薄柜当电器柜,微波炉电饭煲直接嵌进去,比硬塞个冰箱省地儿多了。
做饭动线顺溜得跟滑滑梯一样,转身就取物洗切,这不正是小户型的生存智慧——把每寸空间当拼图来摆弄。
卫生间才两平米,愣是玩出干湿分离。
拆掉暖气片换三联推拉门,壁挂洗衣机悬在马桶上方,洗手盆淋浴区各安其位。
见过螺蛳壳里做道场的,可连湿区都严丝合缝的还真少见。
说到储物,次卧隔出的衣帽间才是真狠活儿!
顶天立地的置物架排得密不透风,冬夏衣物分格码放,主卧衣柜压力直接减半。
这招"借空间"玩得溜,谁还抱怨小户型没地儿囤货?
卧室改造更显功力。
背景墙刷成奶咖色,暖融融的像捧杯热拿铁,隔板架上投影仪一摆,被窝里就能看大片。
成品家具灵活得很,客厅随时能变茶室,暖气凹槽改成隐藏抽屉,杂物全藏进墙里。
说到底,小户型装修就得学人家"四两拨千斤":颜色选浅调显开阔,家具挑细腿不挡光,柜体做嵌入式省地界。
那些笨重吊顶、花哨装饰统统靠边站!
看到最后,真觉得46平能活出146平的体面。
U型厨房、独立衣帽间、干湿分离卫浴,哪样不是大宅标配?
可人家愣是用设计缝缝补补凑齐了。
装修这事吧,真不是钱砸得多就高级,关键得像解数学题——已知面积有限,求如何塞进生活所有需求。
那些抱怨小户型憋屈的,该学学这种"螺丝壳里建宫殿"的本事了。
毕竟房子大小早注定了,但住得舒不舒坦,还得看脑子能不能转出弯儿来!
体坛视界


关注

55674